Написать комментарий
2 комментария
Светлана
2019-06-05 19:28:23
Сутками будешь тереть открытые шкафчики и полочки…
Ответить
Марина
2019-06-11 08:51:44
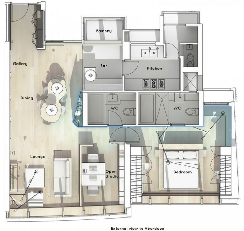
Понравился вид из окна с кровати.
Ответить









