Новые материалы от 04 июля Загородный дом для отдыха JeuneFille 2019-07-03 18:31:54 1 Мне нравится 9 Добавить в закладки 1 Поделиться в ОК Поделиться Вконтакте Поделиться на Facebook Поделиться на @mail.ru В Pinterest Написать комментарий Ваше имя: E-mail для ответов: Загрузка... 1 комментарий LEA 0Кто поставил минус Еще никто не поставил оценку 0Кто поставил плюс Еще никто не поставил оценку 2020-03-22 07:18:05 # ↓ А где же спальни или хотя бы одна ??? Ответить Самое популярное
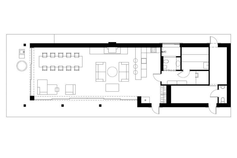
А где же спальни или хотя бы одна ???