Написать комментарий
1 комментарий
Елена Кон.
2019-08-03 13:55:58
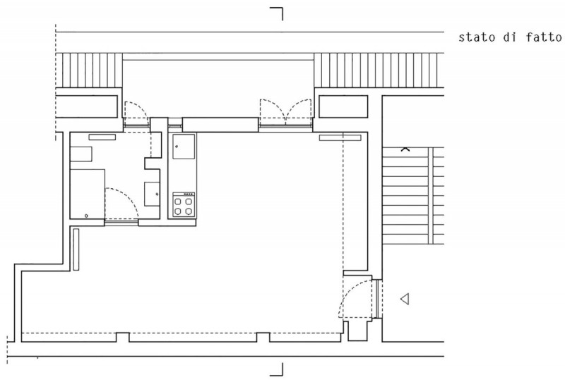
Было…
Ответить










