Написать комментарий
3 комментария
Elena
2019-08-12 23:24:15
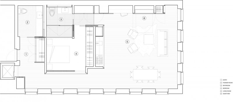
А где же уют ??????????????????????
Ответить
Svetlana
2019-08-13 04:42:12
Удивительно: в таком большом помещении с несколькими окнами умудрились сделать «ввставку шкафов»).
Ответить
Елена Кон.
2019-08-13 11:53:52
При такой площади вполне можно было выделить место в дальнем от входа углу для спальни и кухни, а не спать в фанерной коробке рядом с лифтом…
Ответить









