Новые комментарии

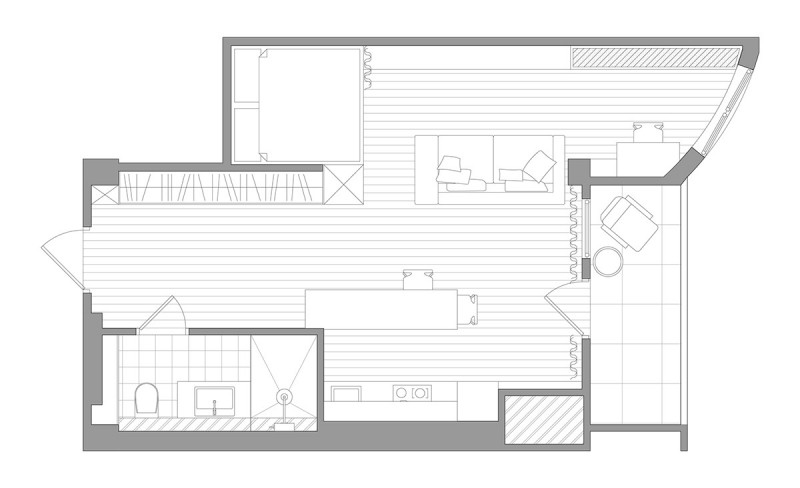
Кровать вплотную к канализационным трубам — это мо...
Мимо это в небо через трубу...         Хорошая теп...
Ещё один пример антидизайна.....
Вот именно! всего лишь ботинки на столе да отрубле...
Да, если бы не написали, что это работа «дизайнеро...
это  у них текстильный декор
ну конечно же.как не впереть сюда  такой потолок-н...
Какие то рамочки, квадратики, перегородка из квадр...
Да нормально, хуже видали
Вот тоже специально еще раз посмотрела, что здесь ...
на картинке всё экзотично, но жить или даже иметь ...
203 м-всю крышу заняли
Судя по встроенному буфету, кухню со спальней поме...
Грандиозный дизайнерский аксессуар.)) 
Застрелиться можно от такой цветовой гаммы! 

Свежий и утонченный интерьер компактных апартаментов

JeuneFille
2019-08-13 15:34:45

    

Свежий и утонченный интерьер компактных апартаментов
Свежий и утонченный интерьер компактных апартаментов
Свежий и утонченный интерьер компактных апартаментов
Свежий и утонченный интерьер компактных апартаментов
Свежий и утонченный интерьер компактных апартаментов
Свежий и утонченный интерьер компактных апартаментов
Свежий и утонченный интерьер компактных апартаментов
Мне нравится
9
Загрузка...
Нет комментариев