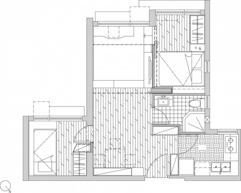
Квартира в Гонконге для двух поколений семьи и их любимых домашних животных



















Написать комментарий
1 комментарий
Svetlana
2019-09-19 09:48:34
Кота перекормили))))
Ответить