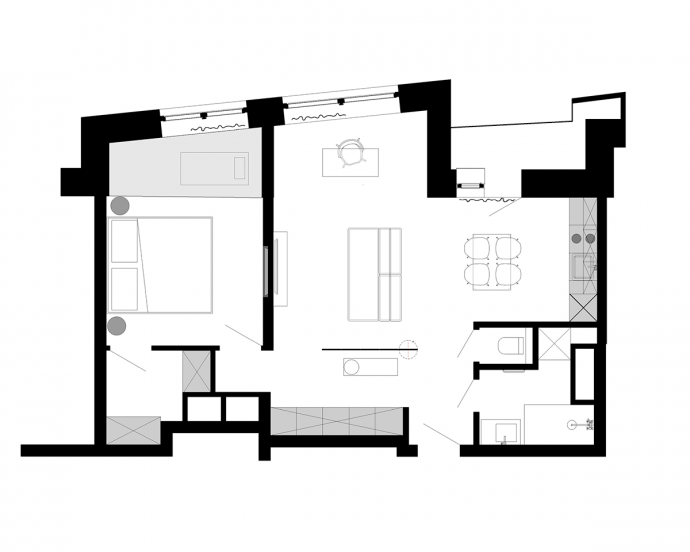
Интерьер квартиры в нейтральных тонах












Написать комментарий
Нет комментариев