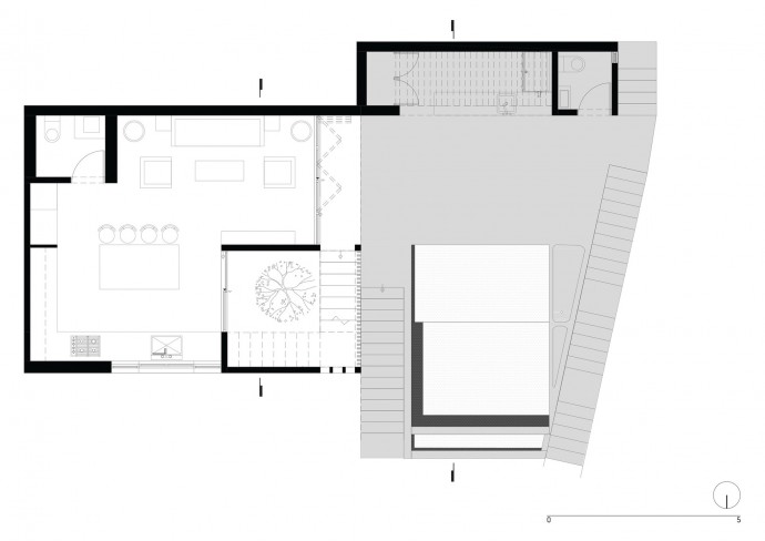
Серферский домик на склоне холма в мексиканской деревушке на берегу Тихого океана


















Написать комментарий
Нет комментариев