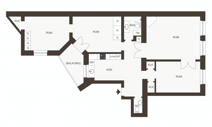
Квартира в доме 1897 года постройки в Стокгольме























Написать комментарий
Нет комментариев