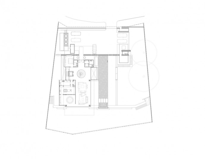
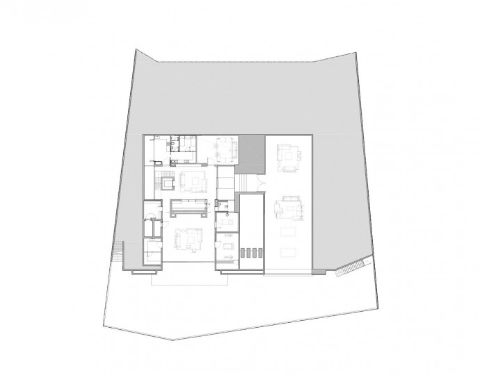
Современная вилла в Сингапуре





































Написать комментарий
1 комментарий
LEA
2025-10-05 19:32:02


Ответить