Апартаменты в Нью-Йорке в стиле Halston и Tom Ford от Messana O’Rorke
2017-07-17 17:03:31
Изысканная простота. Двухуровневая квартира 97 м2 в Стокгольме
2017-07-17 16:45:13
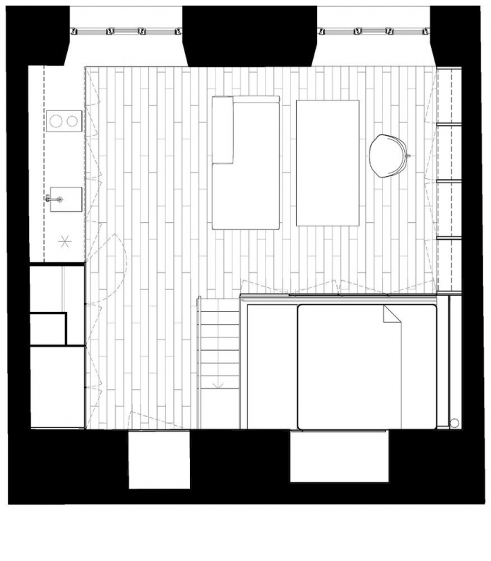
Студия-мастерская 32 м2 архитектора Наты Татунашвили на Арбате с антресолью
2015-08-30 13:47:35





